สัมผัสประสบการณ์พื้นที่ทำงานหรู: JustCo ที่ วัน แบงค็อก , ServCorp ที่ ดุสิต เซ็นทรัล พาร์ค
สอบถามเพิ่มเติม


ตั้งอยู่บนถนนวิภาวดีรังสิต (ซอย 30) และสามารถเข้าถึงได้จากถนนหลักสองสาย คือ ถนนวิภาวดีรังสิต และถนนพหลโยธิน 21 การเดินทางสะดวกสบาย
โดยสามารถเข้าถึงสถานีรถไฟฟ้าใต้ดิน MRT สถานีพหลโยธิน และสถานีรถไฟฟ้า BTS สถานีพหลโยธิน 24 ได้ง่ายดาย พร้อมบริการรถชัตเทิลมูฟมี (Shuttle Muvmi Service)

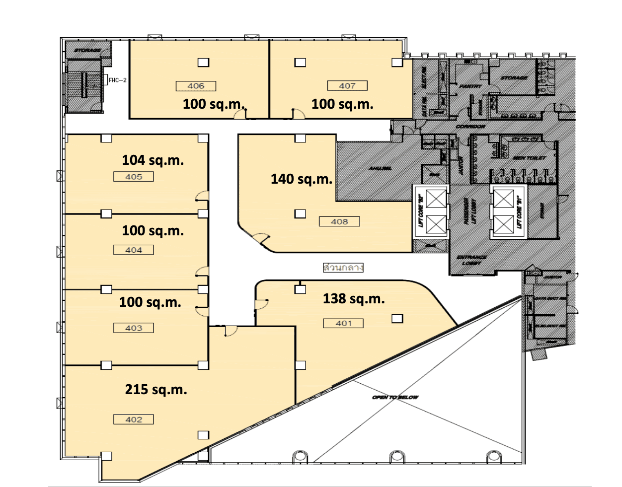
อาคารชินวัตร ทาวเวอร์ 3 พื้นที่สำนักงาน 100-1,200 ตร.ม.

เงื่อนไขการเช่า:
สัญญาเช่าเริ่มต้นที่ 3 ปี พร้อมตัวเลือกในการต่ออายุสัญญา
ความสูงของเพดาน:
ลิฟต์ความเร็วสูง:
ลิฟต์บริการ 20 ตัว, ลิฟต์ที่จอดรถ 2 ตัว และ ลิฟท์ขนของ 2 ตัว
ระบบปรับอากาศ:
ที่จอดรถ:
ชินวัตร ทาวเวอร์ 3 เป็นตัวเลือกที่น่าสนใจสำหรับธุรกิจที่กำลังมองหาพื้นที่สำนักงานที่มีความทันสมัยและสิ่งอำนวยความสะดวกครบครันในทำเลที่ตั้งที่สะดวกสบาย











